• 香蕉污视频下载,香蕉视频污在线观看,香蕉精品视频在线,黄色大香蕉视频在线

    全國銷售服務電話:

    0577-67008999

    掃一掃

    氣動香蕉视频污在线观看,電動香蕉视频污在线观看,自力式壓力香蕉视频污在线观看,香蕉精品视频在线,氣動真空球閥,氣動真空蝶閥,氣動擋板閥,電動開關蝶閥,電動開關球閥

    您當前的位置:首頁 / 產品展示 / 自力式壓力香蕉视频污在线观看 / ZZYP自力式蒸汽香蕉视频污在线观看

    ZZYP自力式蒸汽香蕉视频污在线观看

    ZZYP自力式蒸汽香蕉视频污在线观看

    所屬分類: 自力式壓力香蕉视频污在线观看

    自力式蒸汽香蕉视频污在线观看的安裝注意:必須在壓力香蕉视频污在线观看的適當位置取一個壓力點。閥前壓力應大於管徑的兩倍,閥後壓力應大於閥內管徑的6倍。計算:自動閥可以小於管徑,但截止閥、截止閥、旁通閥、過濾器不能小於管徑。

    • 質量穩定:實行全過程質量監控,細致入微,各方麵檢測!
    • 價格合理:很好內部成本控製,減少了開支,讓利於客戶!
    • 交貨快捷:Xian進生產流水線,充足的備貨,縮短了交貨期!
    • 熱線:0577-67008999

    產品詳情

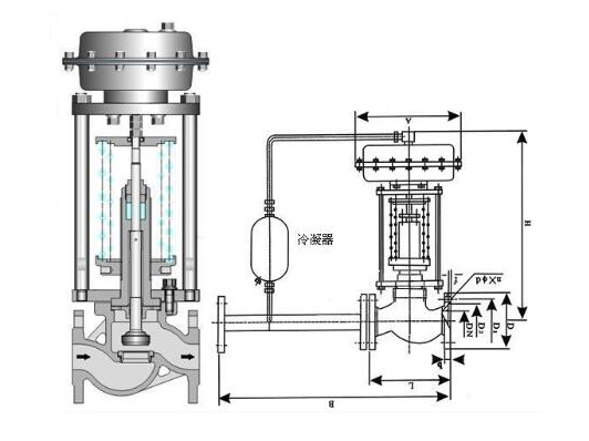
    ZZYP自力式蒸汽香蕉视频污在线观看外形尺寸

    公稱通徑 0N20253240506580100125150200250300
    法蘭接管尺寸 B38351260386210231380180020002200
    法蘭端麵距 L150160180200230290310350400480600730850


    調



    kPa
    15 一 140H4755205407107808408809159401000
    A280308
    280 — 500H455500520690760800870880900950
    A230
    120 — 300H450490510680750790860870890940
    A176194280
    480 — 1000H445480670740780850860880930
    A176194280
    600 一 1500H445570600820890950100011001200
    A8596
    1000 — 2500H445570600820890950100011001200
    A8596
    重量 kg2637427290114130144180200250
    導壓管接頭螺紋M16X1.5

    ZZYP自力式蒸汽香蕉视频污在线观看安裝結構圖

    自力式蒸汽香蕉视频污在线观看安裝結構圖

    ZZYP自力式蒸汽香蕉视频污在线观看的安裝注意

    1、必須在壓力香蕉视频污在线观看的適當位置取一個壓力點。閥前壓力應大於管徑的兩倍,閥後壓力應大於閥內管徑的6倍。

    2、計算,自動閥可以小於管徑,但截止閥、截止閥、旁通閥、過濾器不能小於管徑。

    ZZYP自力式蒸汽香蕉视频污在线观看的安裝

    1、當用於氣體或低粘度液體介質時,ZZY型自走式壓力控製閥通常直立安裝在水平管道上,隻有翻轉時才會翻轉。不允許位置空格。或對角線。

    2、調壓閥周圍應留有適當的空間,便於現場維護和操作。

    3、如果介質是幹淨的氣體或液體,則閥門前的過濾器可能沒有安裝。

    4、壓力控製閥口徑過大(DN≥100)時,需要安裝固定支架。如果您發現介質非常幹淨,則可能未安裝Part3、

    5、如果位置確實不準,可以省略旁通閥(手動)(不推薦)。

    6、閥組後,用戶可根據需要選擇止回閥、安全閥等。

    7、當閥門使用蒸汽或高粘度液體介質時,ZZYP自力式蒸汽香蕉视频污在线观看通常倒裝在水平管道上,冷凝器(蒸汽自動)應更高,接管閥門的前部和後部。冷凝器在使用前應注滿冷水,約3個月後注水一次。

    自力式壓力香蕉视频污在线观看工作原理

    自力式壓力香蕉视频污在线观看工作原理 自力式流量香蕉视频污在线观看工作原理 自力式微壓香蕉视频污在线观看的工作原理、特點及應用

    自力式壓力香蕉视频污在线观看工作原理

    自力式壓力香蕉视频污在线观看閥前和閥後控製區別 自力式壓力香蕉视频污在线观看出廠檢測標準 自力式蒸汽香蕉视频污在线观看結構特點 自力式壓力香蕉视频污在线观看主要型號及特點 自力式壓力香蕉视频污在线观看主要特點 自力式壓力香蕉视频污在线观看自動調節流量分配 自力式壓力香蕉视频污在线观看壓力設定點波動小 閥前壓力自力式壓力香蕉视频污在线观看 自力式壓力香蕉视频污在线观看介質流過閥門後會產生壓力損失 自力式壓力香蕉视频污在线观看無需外加能源 自力式壓力香蕉视频污在线观看無需外加驅動能源裝置 自力式壓力香蕉视频污在线观看適應性 自力式壓力香蕉视频污在线观看的壓力平衡機構 自力式壓力香蕉视频污在线观看自動運行 自力式壓力香蕉视频污在线观看類別 自力式壓力香蕉视频污在线观看結構特點

    自力式壓力香蕉视频污在线观看應用

    自力式壓力香蕉视频污在线观看在工業自動中應用 自力式流量香蕉视频污在线观看應用 自力式香蕉视频污在线观看實現介質調節過程 自力式壓差香蕉视频污在线观看怎麽選擇 自力式壓力香蕉视频污在线观看適用自動控製的場合 自力式壓力香蕉视频污在线观看型號 自力式香蕉视频污在线观看與電動香蕉视频污在线观看區別 自力式壓力香蕉视频污在线观看 自力式壓力香蕉视频污在线观看應用在非腐蝕性工藝條件下 自力式壓力香蕉视频污在线观看實現係統的流量分配

    自力式壓力香蕉视频污在线观看選用要求

    選用自力式香蕉视频污在线观看 自力式壓力香蕉视频污在线观看和減壓閥區別 自力式壓力香蕉视频污在线观看製件

    自力式壓力香蕉视频污在线观看安裝、操作要求

    自力式壓力香蕉视频污在线观看啟動和安裝操作 自力式壓力香蕉视频污在线观看安裝維護事項 自力式流量控製閥使用安裝 自力式香蕉视频污在线观看安裝事項 自力式壓力香蕉视频污在线观看工作使用 自力式壓力香蕉视频污在线观看安裝使用 自力式壓力香蕉视频污在线观看堵卡避免措施 自力式壓差香蕉视频污在线观看使用要點  自力式香蕉视频污在线观看防堵防卡方法和使用方法 自力式壓力蒸汽香蕉视频污在线观看安裝注意細節 自力式壓力香蕉视频污在线观看設定壓力的問題分析  自力式壓力香蕉视频污在线观看使用方法 自力式微壓差香蕉视频污在线观看安裝要求 自力式壓力香蕉视频污在线观看使用要點 自力式壓力香蕉视频污在线观看操作規範 自力式壓力香蕉视频污在线观看使用 如何設置自力式壓力香蕉视频污在线观看的壓差值 自力式壓力香蕉视频污在线观看怎麽控製

    相關產品

    相關黄色大香蕉视频在线

    氣動香蕉视频污在线观看|電動香蕉视频污在线观看|自力式壓力香蕉视频污在线观看|香蕉精品视频在线

    香蕉污视频下载香蕉视频污在线观看廠家是一家在自控閥門等領域有著多年生產和服務經驗的專業廠家,提供各種氣動香蕉视频污在线观看, 電動香蕉视频污在线观看, 自力式壓力香蕉视频污在线观看, 香蕉精品视频在线等自控閥門,產品廣泛應用於行業控製係統、石油、化工、電力、水處理、礦用等領域。

    氣動香蕉视频污在线观看相關產品

    ZJHM氣動帶手動香蕉视频污在线观看| ZJHM氣動套筒智能型香蕉视频污在线观看| ZJHN氣動薄膜雙座香蕉视频污在线观看| ZJHP氣動帶切斷香蕉视频污在线观看| 零泄漏大口徑氣動香蕉视频污在线观看| 頂裝手輪氣動香蕉视频污在线观看| 氣動高溫香蕉视频污在线观看| 進口氣動香蕉视频污在线观看| 氣動V型香蕉视频污在线观看| 氣動薄膜式香蕉视频污在线观看| 氣動薄膜香蕉视频污在线观看| 氣動保溫香蕉视频污在线观看| 氣動波紋管香蕉视频污在线观看| 氣動襯氟香蕉视频污在线观看| 氣動流量香蕉视频污在线观看| 氣動活塞香蕉视频污在线观看| 氣動套筒香蕉视频污在线观看| 氣動溫度香蕉视频污在线观看| 氣動蒸汽香蕉视频污在线观看| 氣動智能香蕉视频污在线观看| 蒸汽氣動香蕉视频污在线观看| 智能型氣動香蕉视频污在线观看| CV3000氣動香蕉视频污在线观看| CV3000型氣動香蕉视频污在线观看| 高壓氣動香蕉视频污在线观看| 高壓鍛造氣動香蕉视频污在线观看| 氣動式香蕉视频污在线观看| ZJHM氣動香蕉视频污在线观看| 氣動香蕉视频污在线观看ZJHM04| ZJHM03智能型氣動香蕉视频污在线观看|

    電動香蕉视频污在线观看相關產品

    大口徑電動香蕉视频污在线观看| 大口徑電動智能香蕉视频污在线观看| 電動V型香蕉视频污在线观看| 電動比例香蕉视频污在线观看| 電動單座香蕉视频污在线观看| 電動二通香蕉视频污在线观看| 電動控製香蕉视频污在线观看| 電動籠式香蕉视频污在线观看| 電動三通分流香蕉视频污在线观看| 電動三通香蕉视频污在线观看| 電動雙座香蕉视频污在线观看| 電動風量香蕉视频污在线观看| 電動壓力香蕉视频污在线观看| 電動蒸汽溫度香蕉视频污在线观看| 電動直行程香蕉视频污在线观看| 電動智能香蕉视频污在线观看| 電動智能型香蕉视频污在线观看| 電動軸流式香蕉视频污在线观看| 液動軸流式香蕉视频污在线观看| 電子式電動香蕉视频污在线观看| 防爆電動香蕉视频污在线观看| 高溫電動香蕉视频污在线观看| 套筒電動香蕉视频污在线观看| 智能電動香蕉视频污在线观看| DCB電動平衡籠式香蕉视频污在线观看| 大口徑電動香蕉视频污在线观看| ZDLQ X電動三通香蕉视频污在线观看| 調節型電動香蕉视频污在线观看| ZDLP單座電動香蕉视频污在线观看| 電動香蕉视频污在线观看|

    自力式壓力香蕉视频污在线观看相關產品

    自力式壓力香蕉视频污在线观看| V230D01Y溫州自力式壓力香蕉视频污在线观看| V230D02Y自力式微壓香蕉视频污在线观看| ZZYP自力式香蕉视频污在线观看| ZZYP自力式壓力香蕉视频污在线观看| ZZYP自力式壓力調壓閥安裝| ZZYP自力式蒸汽香蕉视频污在线观看| ZZYVP供氮閥| ZZYVP自力式微壓香蕉视频污在线观看| ZZYVP自力式壓力香蕉视频污在线观看| 自力式氮氣壓力香蕉视频污在线观看| 自力式閥前壓力香蕉视频污在线观看| 自力式蒸汽香蕉视频污在线观看| 自力式高壓香蕉视频污在线观看| V230自力式壓力香蕉视频污在线观看| ZZYVP自力式差壓香蕉视频污在线观看| ZZYP自力式香蕉视频污在线观看| ZZYP自力式壓力香蕉视频污在线观看| 自力式壓力香蕉视频污在线观看V230| V230自力式壓力香蕉视频污在线观看| 自力式香蕉视频污在线观看| 自力式壓力香蕉视频污在线观看| 自力式香蕉视频污在线观看| 進口自力式閥前壓力香蕉视频污在线观看| 氣動自力式壓力香蕉视频污在线观看| 自力式安全壓力香蕉视频污在线观看| 自力式帶指揮器壓力香蕉视频污在线观看| 自力式閥後壓力香蕉视频污在线观看| 自力式壓力(差壓)香蕉视频污在线观看| 自力式壓力控製香蕉视频污在线观看|

    香蕉精品视频在线相關產品

    ZJHM氣動套筒智能型香蕉视频污在线观看優勢有哪些| ZJHM氣動帶手動香蕉视频污在线观看實現雙重操控| ZSPQ氣動帶手動活塞式香蕉精品视频在线| 氣動活塞式香蕉精品视频在线| ZMQSY氣動Y形疏水閥| ZSPC氣動活塞香蕉精品视频在线| 氣動O型香蕉精品视频在线| 氣動Y形疏水閥| 氣動活塞香蕉精品视频在线| 電動香蕉精品视频在线| 香蕉精品视频在线| ZMBQ氣動薄膜香蕉精品视频在线| ZMBX氣動三通香蕉精品视频在线| 電動緊急香蕉精品视频在线| 燃氣安全香蕉精品视频在线| ZSPC三通香蕉精品视频在线|
    浙江香蕉污视频下载自控閥門科技有限公司
    • 地址:溫州市甌北鎮安豐工業區
    • 聯係人:施經理 13738330777
    • 0577-67923777 0577-67008999 更多聯係方式
    網站地圖